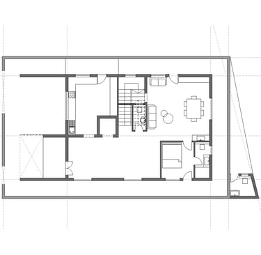
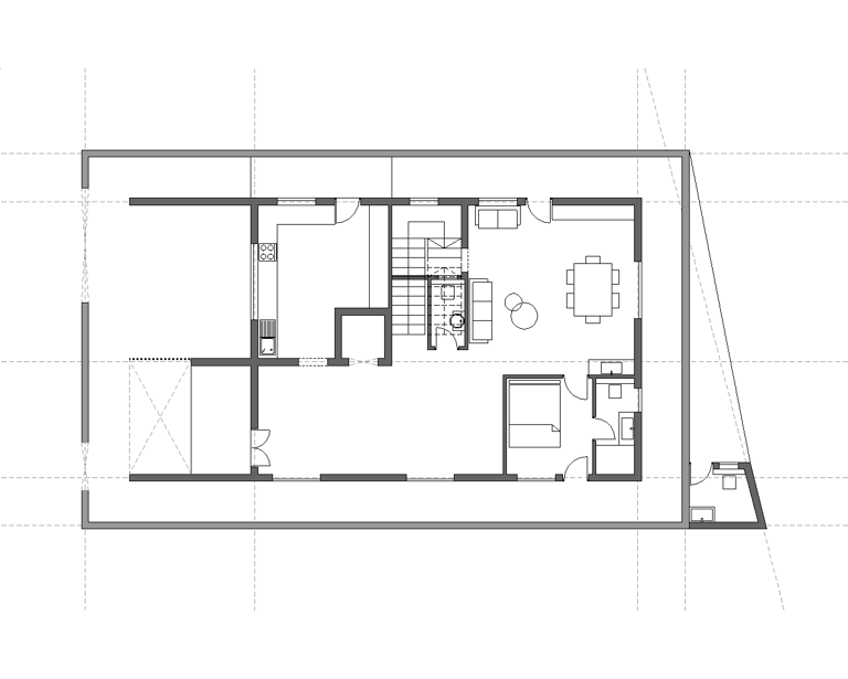
Area: 5200 sft
Location: Nenaknampur
Status: Finished
Collaborators: Ar. Shravani Reddy (SpaceTime Creative)
+91-8125158355sstarun@datplusco.com