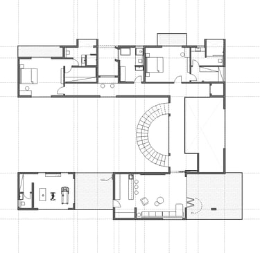
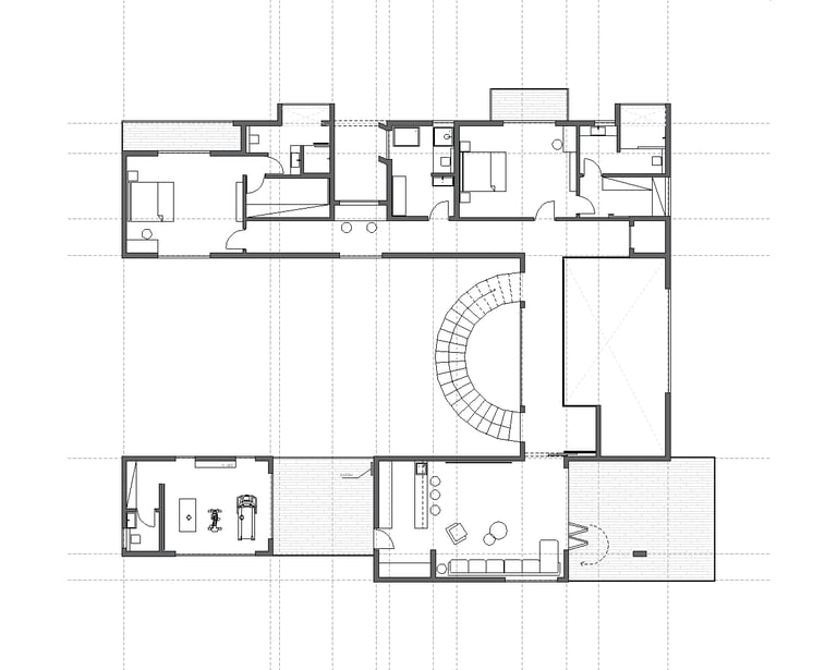
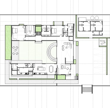
Woods 1

Area: 7600 sft

Location: Shamshabad

Status: On-Going

Collaborators: Ar. Shravani Reddy (SpaceTime Creative)

Ongoing Construction on site
Ongoing Construction on site