DAT+
Projects
Inside DAT+
Mentions
Contact
DAT+
Projects
Inside DAT+
Mentions
Contact
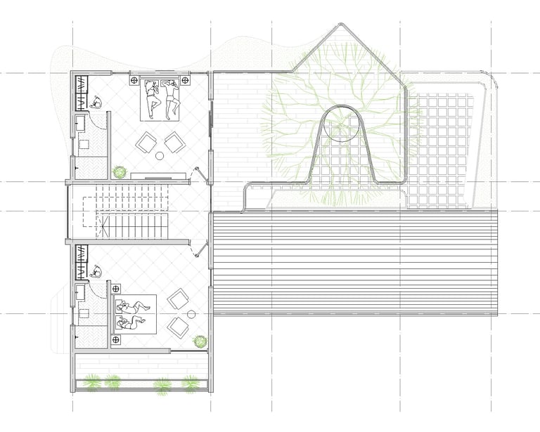
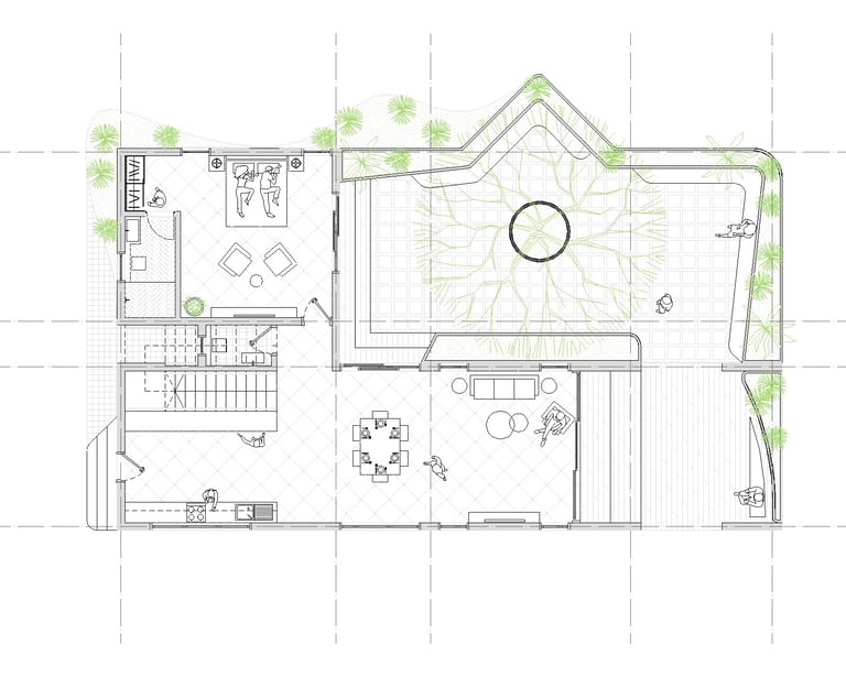
Woods 23
Area: 2800 sft
Location: Shamshabad
Status: Conceptual
DAT+
+91-8125158355
sstarun@datplusco.com